«Шаболовка — один из важнейших районов авангарда. Здесь, в окружении конструктивистских домов и экспериментальных зданий, мы открыли бар PACE — пространство, где история района встречается с современной культурой», — говорит дизайнер Джозеф Брин.
- По теме: Бетонная кофейня для сообщества райдеров в Москве: проект Марата Мазура
- Джозеф Брин
- Дизайнер
- «В беге существует понятие «иноходца»: опытный бегун, который устанавливает и поддерживает определенный темп на определенной дистанции. Таким «стимулятором» для данной местности должна была стать планка».
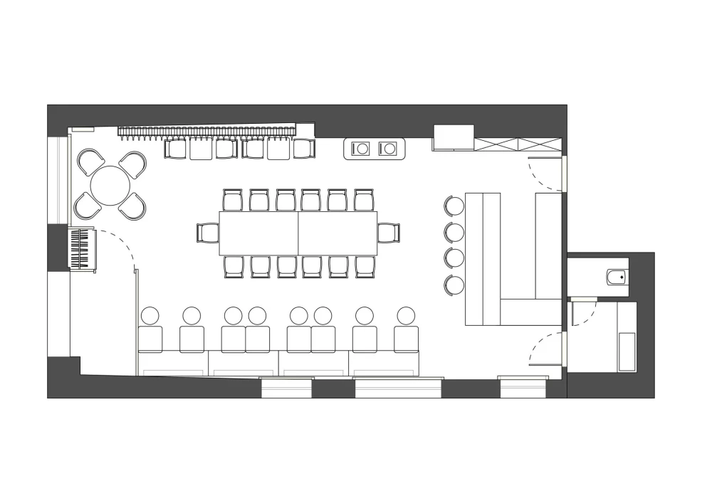
- «Большой стол посередине комнаты — интерпретация дома-коммуны: место не для одинокого ужина, а для обмена идеями»
- Самое главное в нашем Телеграмма — для тех, кто спешит
По теме: Бетонная кофейня для сообщества райдеров в Москве: проект Марата Мазура
«Интерьер построен по принципу «открытости»: бетонный потолок, воздуховоды, видимые коммуникации. Никакой косметики и декоративного камуфляжа. В ПАСЕ нет случайных предметов и реплик: вся мебель сделана на заказ, часть — работы современных российских дизайнеров».

Джозеф Брин
Дизайнер


«К участию в проекте меня пригласила Яна Двоенко, куратор, научный сотрудник и архивариус Дома культуры ГЭС-2, которая отвечала за художественное направление и концепцию пространства. Сам клиент занимается бегом уже давно и его жизнь тесно переплетена с этим хобби. Именно поэтому и концепция, и название содержат отсылки к культуре бега».


«В беге существует понятие «иноходца»: опытный бегун, который устанавливает и поддерживает определенный темп на определенной дистанции. Таким «стимулятором» для данной местности должна была стать планка».
«Ребята хотели создать гибридное пространство, где бегуны могли бы собираться после тренировок или забегов, обмениваться опытом и находить единомышленников, где бы проходили выставки и вечеринки современного искусства. Трансформируемое пространство, в котором так же комфортно завтракать, слушать лекции и музыку и, конечно же, приятно беседовать за бокалом вина».

«Кроме того, Шаболовка — одно из ключевых направлений русского авангарда. Мы хотели, чтобы его идеи были включены в дизайн ПАСЕ. Например, винный шкаф выполнен по основным принципам конструктивистской архитектуры. Это модульность — конфигурацию можно менять, составляя новые комбинации; есть разделение на зоны, как в конструктивистской архитектуре, но вместо жилых, общественных и хозяйственных ячеек мы предложили разделение на зоны для акустического оборудования и декора».


«К некоторым столам также применен принцип модульности, а сами объекты вдохновлены водонапорной башней, которую я видел несколько лет назад в Карелии. Стол превращает бар в «городскую гостиную» для соседей и гостей района. Он также состоит из двух модулей и при необходимости может быть разделен или объединен в квадрат».
«Большой стол посередине комнаты — интерпретация дома-коммуны: место не для одинокого ужина, а для обмена идеями»
«Винная полка и столешница изготовлены из переработанного пластика. В конструктивизме активно использовались новые строительные материалы и технологии, которые стали доступны благодаря индустриализации. Наш выбор — своего рода «пощечина» винному снобизму. Центром композиции стала барная стойка, покрытая светло-зеленым микроцементом, который мастер-декоратор Катя Быстрова окрасила на месте. Этот материал очень тактильный и достаточно прочный, чтобы его можно было использовать на контактной барной стойке».


«Несмотря на твердые текстуры бетона и кирпича, интерьер получился достаточно ярким. Кислотные тона — отсылка к кроссовкам и красочной беговой одежде. Мне хотелось раскрыть тему бега, но не делать ее слишком простой. Ванная комната также полностью покрыта микроцементом, включая столешницу и раковину. Чтобы сбалансировать рациональность проекта, мы добавили в интерьер некоторые винтажные детали: стулья и лампы с историей. Эти предметы придают пространству ту мягкость, которая делает его живым».
Дизайн интерьера и мебели: Джозеф Брин. Художественное направление и концепция пространства: Яна Двоенко. Световой дизайн: Настя Голованова.










